
In construction, precision is key to ensuring projects are completed efficiently and correctly. Mr.Umriakov states that ductwork shop drawings are an essential part of this process, providing detailed, accurate plans that bridge the gap between design and installation. These drawings streamline workflows, minimize errors, and make HVAC installations more efficient and reliable.
Meaning of the Ductwork Shop Drawings
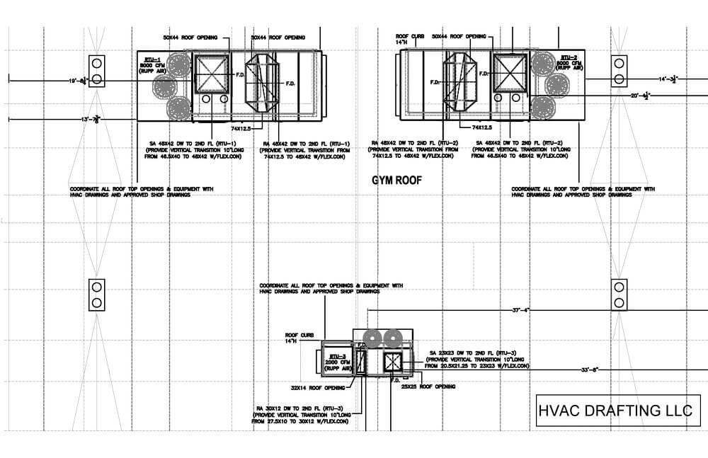
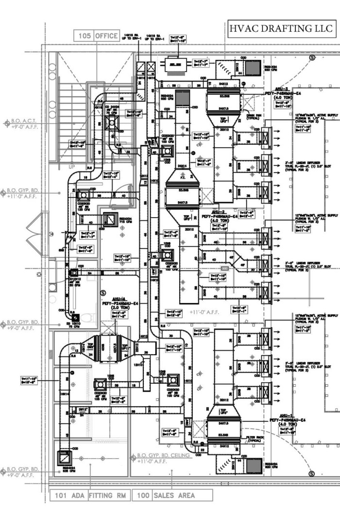
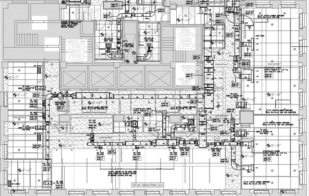
Ductwork shop drawings are scaled and detailed representations of an HVAC system’s ductwork. They include dimensions, materials, placements, and connections, offering more detail than standard blueprints. Created by skilled drafters in collaboration with engineers and contractors, these drawings ensure seamless integration of HVAC systems into the overall construction project.

Streamlining the Construction Process
Oleh Umriakov says that shop drawings aslo play a critical role in coordinating efforts among different trades, such as electrical, plumbing, and structural teams. By identifying potential clashes between systems early on, they prevent costly on-site modifications.

Moreover, these drawings provide clarity on design intent, ensuring compliance with building codes and project specifications. They also enable accurate material takeoffs, reducing waste and unnecessary expenses. This level of detail allows for precise fabrication and installation, ultimately keeping projects on schedule and within budget.
Simplifying HVAC Installation
Oleh Umriakov states that ductwork shop drawings serve as a crucial guide for installers, providing exact measurements and detailed instructions for fitting components. This eliminates guesswork, minimizes errors, and ensures proper installation on the first attempt.

For complex projects, these drawings help navigate tight or irregular spaces by offering pre-planned solutions, ensuring the system fits perfectly without compromising functionality. They also assist in troubleshooting, allowing teams to quickly address issues during installation.

Finally, shop drawings support quality assurance by serving as a reference for verifying installations. This ensures systems perform as designed and meet all safety and efficiency standards.

A Smart Investment
While creating ductwork shop drawings requires time and expertise, the benefits far outweigh the costs. They enhance coordination, reduce delays, optimize materials, and improve installation quality. For contractors, engineers, and project owners, these drawings are a crucial tool for delivering successful HVAC systems.


Oleh Umirakov in HVAC Drafting LLC specializes in precise, tailored shop drawings that simplify construction process and ensure flawless installations. Email mechanical drawings at newyorkhvacdraft@gmail.com for a free estimate to get competitive pricing and site survey will be scheduled as soon as possible.
Author: Oleh Umriakov, HVAC Drafting LLC
Media Contact
Company Name: HVAC Drafting LLC
Contact Person: Oleh Umriakov
Email: Send Email
Phone: 9292532718
Country: United States
Website: https://hvacdrawingnyc.com/